欢迎光临西安科峰光电科技有限公司官方网站!
  • 联系我们029-88685961
联系我们

电话:029-88685961

手机:17791598626

邮箱:kfgd@xakfgd.net

QQ:641511350

地址:陕西省西咸新区沣西新城西部云谷三期11号楼3层

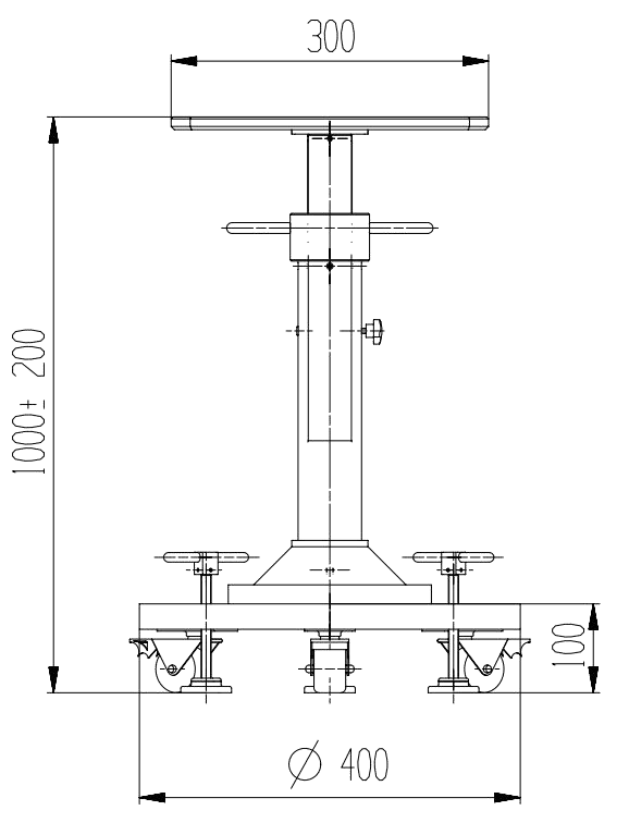
JMT-2型升降台
作者:科峰光电   发布日期:2022-08-16 21:17:00   关注次数: 61

1_副本.png




      

产品简介:

             用于不同高度测量条件下的测量辅助设备。 








     主要技术参数:

           平台尺寸:300mm*300mm           升降范围(mm):800-1200       水平旋转:360° 

           台面孔距:50mm                          螺纹规格:M6                            最大承载重量:50KG

     

     产品外形尺寸:


                                        图片.png                     image.png


     产品配置:

 

产 品 名 称数量单位详细信息
精密升降台1